Send to a Friend


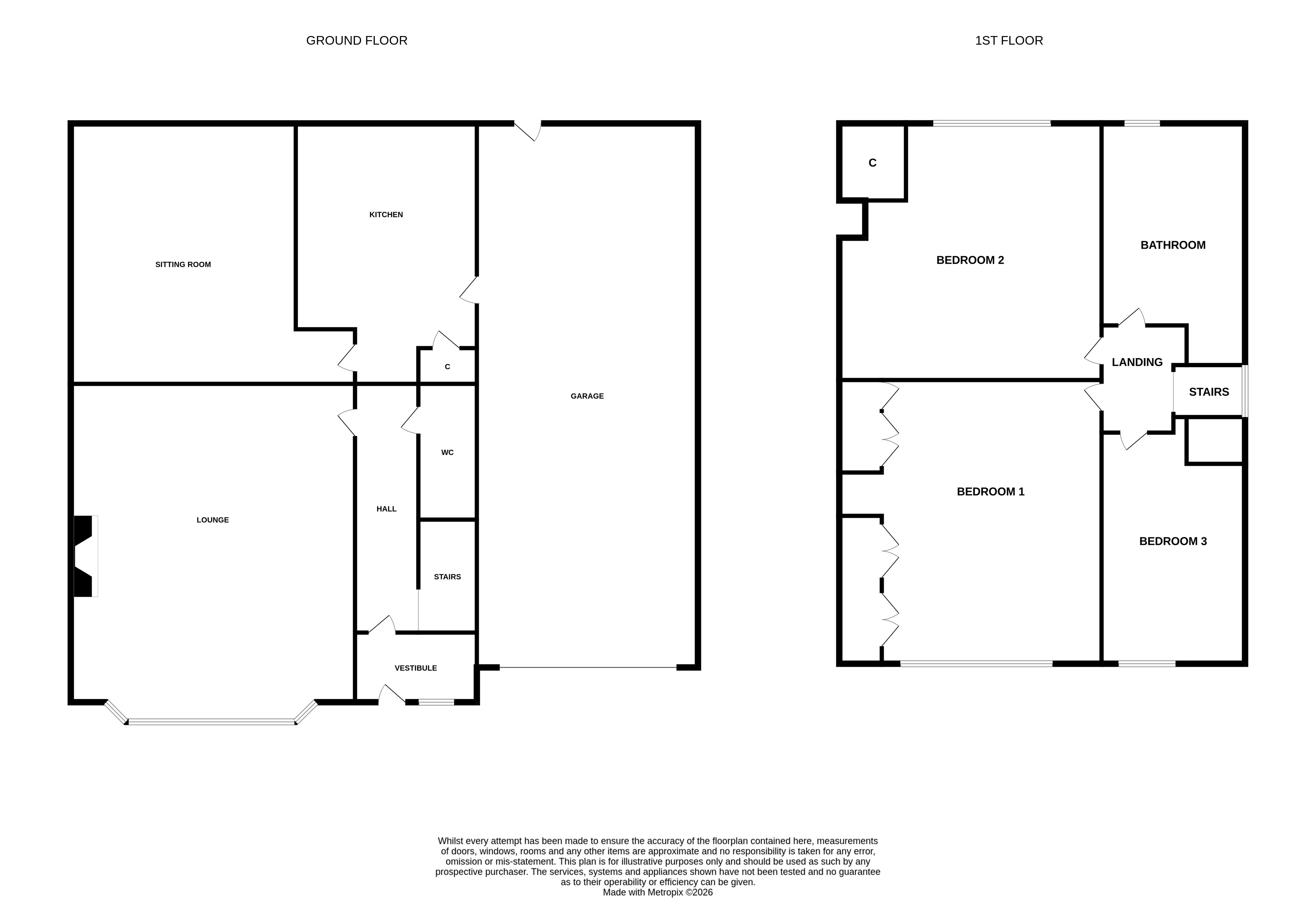
    10, Springfield Place, Aberdeen, AB15 7SF